

New York Wanli Club KTV
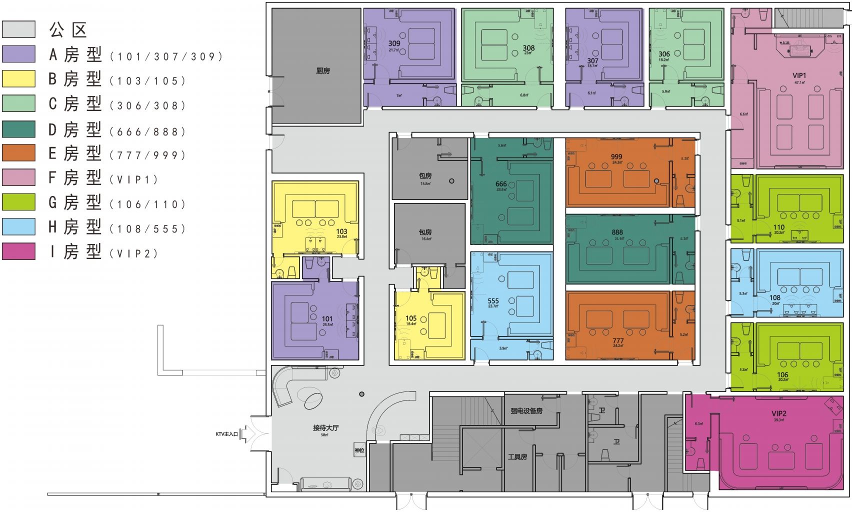
The New York Wanli Club KTV is located in the core business district of downtown New York. It is invested and built by Chinese capital. It is positioned as a high-end luxury entertainment benchmark project. It is specially tailored for Chinese entrepreneurs, international business people and local high-end consumer groups. It aims to fill the market gap of high-end entertainment venues in New York and establish a new benchmark in the entertainment industry. The project takes "high-end customization, cultural integration, and intelligent innovation" as the core concept, and combines the multicultural and high-end consumer needs of New York as an international metropolis to create a multi-functional entertainment space that integrates luxury entertainment, business negotiations, and theme parties. In terms of design, the project blends modern design with New York urban culture, combining Manhattan night views, luxury art installations and Oriental cultural elements, through dynamic lighting, art decoration and intelligent technology, to create a luxurious atmosphere with both internationalization and cultural depth. The welcome hall is highlighted by large crystal chandeliers, dynamic projection walls and high-end art installations to create a highly ceremonial and prestigious experience, while the box design is based on flexibility and customization, including Manhattan night view theme boxes, Oriental classic theme boxes and VIP supreme boxes. Each box is equipped with top-of-the-line Dolby Atmos system, intelligent lighting and high-end service facilities, especially VIP boxes. There are also private bars and separate toilets to provide customers with the ultimate private entertainment experience.
The modular decoration project is a major technical highlight of Wanli Club KTV. The project adopts the world's leading modular construction technology to achieve efficiency and accuracy from design to construction. 85% of the decoration components are prefabricated in the factory, including core components such as sound insulation wall panels, ceiling modules, lighting systems, etc., which greatly shortens the construction period to 60 days, saving 40% of the construction period compared with the traditional decoration mode. At the same time, it ensures that the construction error is controlled within 0.5 mm, presenting a high-quality decoration effect. The modular construction also significantly reduces the decoration waste and realizes green environmental protection. The selected environmentally friendly materials and repurposed modular components further enhance the sustainability. The modular sound insulation system is a highlight of the project. Using the international leading sound insulation wall panel module, the sound insulation performance of the box reaches the STC-55 standard, far exceeding the industry average, providing customers with absolutely private entertainment space.
In terms of intelligence, Wanli Club KTV has introduced a full set of intelligent control systems. Lighting, audio, air conditioning and other equipment are modularized and integrated. Business, party, romance and other scene modes are switched with one click through the central control system to meet different customer needs. Intelligent sensors can also collect customer behavior data in real time to optimize the utilization rate of boxes and service efficiency. In addition, the project is equipped with modular monitoring equipment and intelligent service robots to provide food delivery, wine delivery, cleaning and other services to comprehensively enhance customer experience and safety.
As a pioneering project in the American entertainment industry, Wanli Club KTV not only brings a new luxury experience to customers through the application of modular decoration engineering and intelligent systems, but also sets a new benchmark for the American high-end entertainment industry.